今天:
APP下载
 
肇东新闻 通知公告 健康养生 生活服务
奇闻趣事 优美语录 生活窍门 推荐房源
商家联盟 DM报纸 商家入驻
便民电话 商家快报 会员注册
招聘 求职 招租 求租 出售 求购 征婚 交友
出兑 转让 家政 家教 装修 维修 房产 其它
热点 商家 信息
当前位置:首页 > 房屋租售 > 出售 > 幸福家园工抵房毛坯吉售

幸福家园工抵房毛坯吉售

信息编号:1044383     信息分类:出售     发布时间:2025/12/17 9:03:42
  13674618988 会员发布 肇东市
信息描述
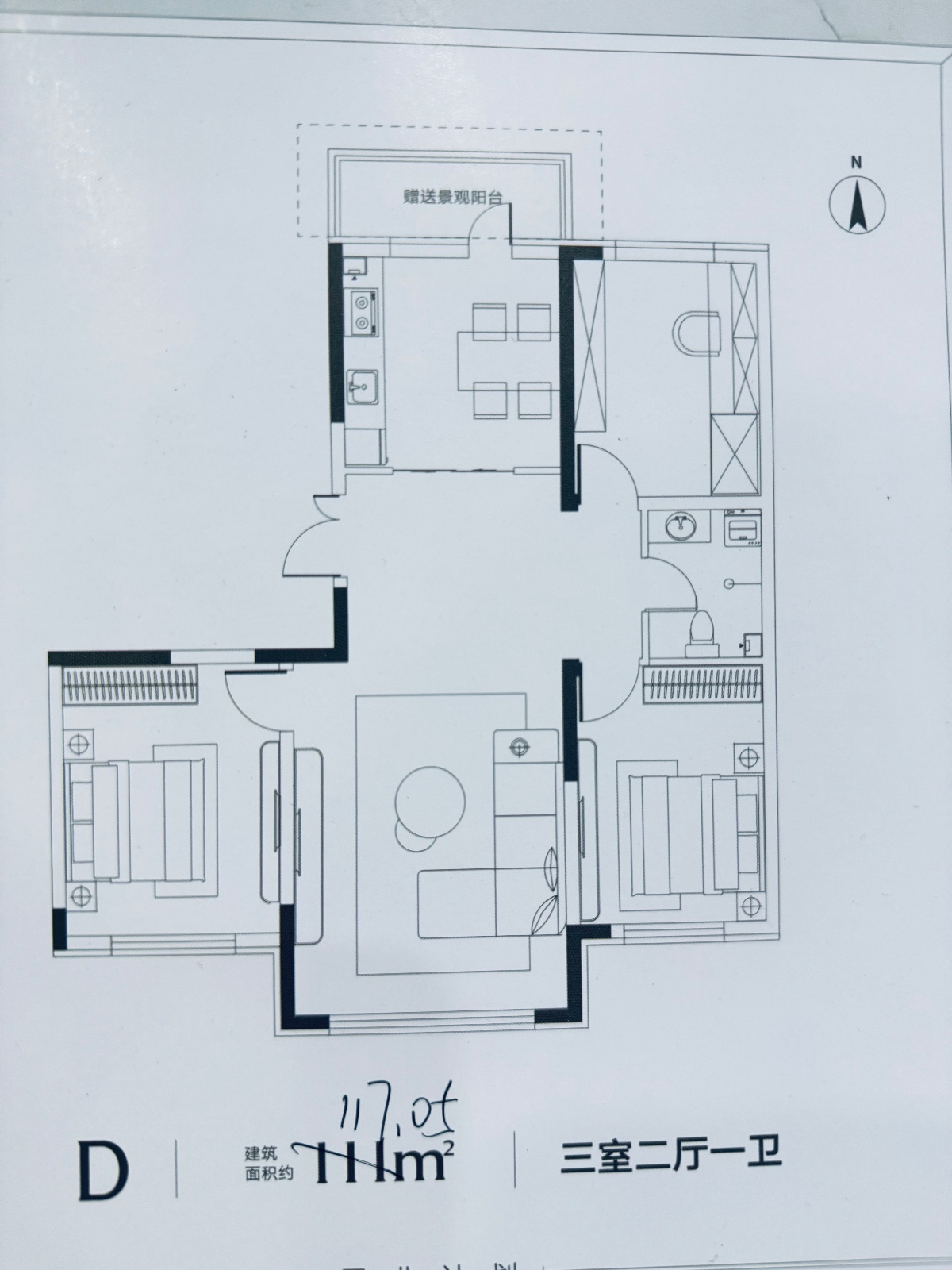
自己家房源 幸福家园新楼8号楼,3️⃣套工程抵款房,两套4楼132平三室两厅两卫,惯穿式电梯🛗,一梯一户;一套15楼117平三室H格局,厨房客厅等宽
相关图片


使用信息须知

①该信息由用户自行发布,其真实性、准确性和合法性由信息发布者负责。
②肇东信息网仅提供信息交流平台,不介入任何交易过程,使用信息时请务必提高警惕。
③强烈建议:拒绝预付费用、选择见面交易、核验证照资料、签订交易合同。
④警方提示:警惕网络黑手,谨防网络诈骗。

     相关信息 更多
吉卖:首府壹号楼房
卖五道街正阳街商服,买一层送一层
急售商服:每平方不到2700元
出售巴黎花园楼房:捡便宜的来吧!
花园正大门商服出售
出售:幸福庄园楼
厂房出租、出卖
卖楼!政府2号楼四楼!
急售!七道街北国富食杂店商服一套
黄金旺铺:出售商服
卖房!宏润壹号:17楼大复式!(中介
肇东大文婚庆:专业婚礼车队!
肇东大文婚庆:专业婚礼车队!
商服出售
9万卖人民八中校区楼
紫都花园楼房出售
临街厂房出租出卖,1500平方
出卖外卖72伏电瓶
最新入驻商家
千鼎客蜡水洗车行
主营:清洗内饰、抛光、打蜡、车内饰品
千鼎客烤羊腿
主营:特色烤羊腿、烤羊排、烧烤
顺风耳手机店
主营:全系手机、平板电脑、智能手表,笔记本电脑
熊猫啤酒折扣仓
主营:上百款精酿啤酒、饮料
慕叁山蛋糕店
主营:生日蛋糕
兰西县立国高中
主营:2025年招生开始报名,全封闭军事化管理
客服电话
0455-7777356
工作时间 周一至周六 8:00-17:30
QQ客服 点击咨询
关于我们
网站介绍
服务条款
付款方式
联系我们
广告服务
网站广告
置顶广告
微信广告
报纸广告
商家服务
商家联盟
商家快报
便民电话
商家入驻
供求信息
房屋租售
招聘求职
生活服务
二手物品
 
微信公众号
APP下载
肇东信息网(肇东信息港)Copyright © 2009-2025 肇东世纪互联电子商务有限公司 All Rights Reserved.
黑ICP备14004386号-1    黑公网安备 23128202000116号    经营许可证(黑)B2-20210119号